Pages : 1
Bonjour,
Mon constructeur a la possibilité de monter le mur du pignon Nord de ma MOB en Monomur de 37 cm (pas sûr de l'épaisseur) que j'isolerai ensuite par l'intérieur ou de rester comme le reste de l'ossature, c'est à dire polystyrène 30mm en extérieur - OSB de 10mm - laine de roche 150mm - pare-vapeur - Fermacell 12,5mm.
Pour info, il y a un aménagement de combles, si ça vous éclaire.
D'après vous, quel serait le meilleur choix sachant que je souhaite monter un préau maçonné (je le monte moi-même et je ne maîtrise pas l'ossature bois…
) qui se reprendra sur environ 1,5m de ce pignon.
Quand je dis le meilleur choix, c'est pour l'isolation et pour ce problème de raccordement… ![]()
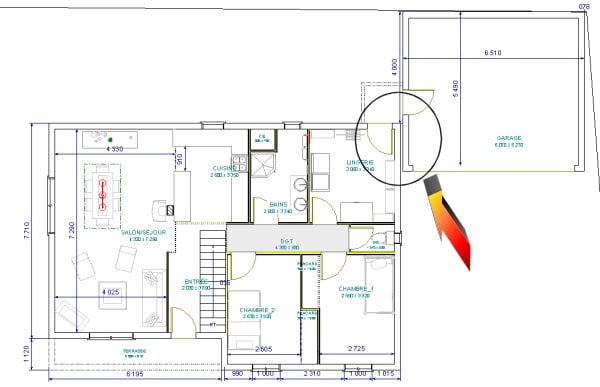
Pour ceux qui ne visualisent pas :

Le pignon Nord est à droite, le préau ensuite, avec dans le rond fléché, la partie qui me pose un soucis de liaison.
Merci pour vos réponses.
Mik
il me semble qu'il vaudrait mieux garder leurs homogoneites a chacun des batiments: tout bois pour l'un, tout en maçonnerie pour l'autre.
Pensez surtout a bien séparer les fondations, lors de la constuction du préau un simple polystyrene fera office de joint de dilatation et sera camoufle sans probleme par un couvre joint.
Pongo a raison : ne jamais "accrocher" sur un bâtiment existant un autre bâtiment, même léger, s'ils n'ont pas des fondations communes. A contrario, bien les désolidariser et faire comme pongo suggère. Quand au mix bois-monomur, kif-kif pongo : aucun intérêt.
Merci pour vos réponses.
Mon constructeur va monter sa maison témoin à côté de Besançon de cette manière, à savoir mur nord en Monomur et reste en ossature bois car d'après leur archi (dixit spécialisée dans la construction environnementale), la brique est meilleur isolant en mur Nord.
Si vous voulez plus d'info : Projet Mont-Chevis. N'y voyez pas là de pub ou qqch comme ça, je n'ai pas encore commencé la construction avec eux donc je ne connais pas encore mon degré de satisfaction !!
![]()
Effectivement, je ne suis pas convaincu que la liaison ossature bois / Monomur soit optimale et quid des dilatations différentes…
Autre interrogation : à l'endroit où le pignon Nord et le mur du préau se croise (sur environ 150 cm) sachant que l'ossature sera en enduit STO, qu'est-il le plus judicieux ? faire toucher le mur maçonné du préau au STO ou laissé un écart de qlq cm pour un éventuel entretien (tout en croisant bien sûr les toitures avec une pièce en zinc ou autre) ?
Mik
l'autre interet d'avoir un monomur ou autre techno en dur au nord c'est pour la neige si tu as un metre de neige pendant l'hiver il vaut mieux que ce soit lui qui trempe dedans plutot que ton bardage!!!
l'autre interet d'avoir un monomur ou autre techno en dur au nord c'est pour la neige si tu as un metre de neige pendant l'hiver il vaut mieux que ce soit lui qui trempe dedans plutot que ton bardage!!!
C'est vrai mais pour nous, heureusement, le climat n'est pas très rude en plaine. Quand on a 20 cm de neige c'est vraiment le bout du monde… ![]()
Sinon, ça ne sera pas bardage mais STO.
La question se posait parce que dans le bouquin de Oliva, j'ai cru comprendre que l'inertie thermique de la brique est très nettement supérieure à l'ossature bois isolée d'où le Monomur au Nord (vent froid dominant) !?
Mik
Pongo a raison : ne jamais "accrocher" sur un bâtiment existant un autre bâtiment, même léger, s'ils n'ont pas des fondations communes. A contrario, bien les désolidariser et faire comme pongo suggère. Quand au mix bois-monomur, kif-kif pongo : aucun intérêt.
je ne suis pas trop d accord , jai construit ce genre de maison, un mur central en monomur, ( obligation architecturale pour une maison bois a carractére contemporains, un mélange de matériaux apporte certainne inovation architecturale , mais ce n est pas si façile que cela à maitriser, car il y a toujours la liaison entre le "mur du maçon et l ossature bois" c est le plus important a traiter les ponts themiques
mais mettre un point dur dans une maison bois, est peut etre la solution pour certain constructeur manquant de professionnalisme , et doutant de leurs contreventement, par exemple la cage d escalier central en béton, peut etre trés interessant, mais aussi un mur de pignon, seul bémol il faut absolument dans le cas d'un monomur, qui soit contreventé par un retour en T ou en L pour qu il se tienne tout seul et que ce ne soit pas l ossature bois qui le contrevente
par contre j ai du mal a comprendre l analyse architecturale, enffet il aurait mieux valu mettre le gardage complement dérriere le pignon nord, et avoir une porte qui donne directement de la maison dans ce garage, et cela aurait fait une zone froide protégeant une zone tempéré.. en général dans des maisons bien pensées on dispose les pieces froides au Nord ainsi que le garage pour faire tampon.. nos anciens mettait la cave au nord, le cellier au nord, la sous a cochon au nord… pour faire tampon, pensez y,
par contre mieux vaut mettre un mur en béton sur le coté sud… vous en tirerez beaucoup plus d avantage et faire un Mur trombe.
Le mur Trombe
Il s’agit d’ajouter, côté Sud si possible, une masse de béton ( un pan de mur ) qui sera en communication avec l’intérieur de la pièce à chauffer. Coté extérieur ce même bloc de béton doit être de couleur noire pour transformer le plus de rayonnement en chaleur. Il doit être aussi protégé de l’extérieur par un vitrage.
par contre j ai du mal a comprendre l analyse architecturale, enffet il aurait mieux valu mettre le gardage complement dérriere le pignon nord, et avoir une porte qui donne directement de la maison dans ce garage, et cela aurait fait une zone froide protégeant une zone tempéré.. en général dans des maisons bien pensées on dispose les pieces froides au Nord ainsi que le garage pour faire tampon.. nos anciens mettait la cave au nord, le cellier au nord, la sous a cochon au nord… pour faire tampon, pensez y,
Effectivement j'y avais pensé aussi mais il faut voir le projet dans son ensemble.
L'arrière du préau est en limite de propriété d'où le décalage des 4m obligatoire avec notre POS puiqu'on souhaite (évidemment
) mettre des fenêtres sur la façade Ouest de la maison.
Et le Nord du préau est en pignon sur rue comme l'impose également le POS.
L'orientation Nord/sud qui n'est pas la panacée est également imposée par le POS.
D'autre part, la lingerie servira de pièce tampon et (ce qui n'est pas sur le plan actuellement) le passage du préau à la lingerie sera couvert. J'ai prévu (pour Madame
) l'installation des poteaux à linge à l'ouest derrière la maison ainsi que (pour Monsieur
) la pile de bois pour le chauffage dans la même zone. La porte nous permettra donc d'y accéder aisément. De plus, la fosse toutes eaux (merci l'assainissement non-collectif…
) sera également dans cette zone (plus en avant, à l'aplomb de la cuisine) et il nous faudra un accès pour le camion de vidange d'où la porte dans le préau. Voili-Voilà !!
par contre mieux vaut mettre un mur en béton sur le coté sud… vous en tirerez beaucoup plus d avantage et faire un Mur trombe.
Le mur Trombe
Il s’agit d’ajouter, côté Sud si possible, une masse de béton ( un pan de mur ) qui sera en communication avec l’intérieur de la pièce à chauffer. Coté extérieur ce même bloc de béton doit être de couleur noire pour transformer le plus de rayonnement en chaleur. Il doit être aussi protégé de l’extérieur par un vitrage.
A oui !! J'ai oublié de préciser que je suis à 15m d'une Eglise classée au Bâtiments de France… Donc un mur noir… ![]()
Pongo a raison : ne jamais "accrocher" sur un bâtiment existant un autre bâtiment, même léger, s'ils n'ont pas des fondations communes.
Moi j'ai une question qui n'a rien Ă voir avec le schmilblick mais quand mĂŞme..
Comment tu fais une extension dans ce cas lĂ ?
Parce qu'à priori tu ne fais pas forcément faire les fondations en prévision de ton extension future… ![]()
il est vrai que toutes constrcutions dépends de l orientation du terrain, pour le pos, si celui ci est contraire à la construction bio climatique il est attaquable, surtout en ces périodes et souvent la raison l emporte
pour virginie vue les fondations que l on fait pour une maison quand on sait que cellesci pourrait suporter un immeuble de 3 étages on a rien a craindre
et en terme d'isolation, le momomur (37.5) assure-til une meilleure isolation que la mob ? (je ne parle pas d'inertie)
AL a écrit :
"pour le pos, si celui ci est contraire à la construction bio climatique il est attaquable, surtout en ces périodes et souvent la raison l emporte"
Désolé mais dans le cadre d'un permis de construire, on demande éventuellement une adaptation mineure au POS ou encore on essaie de jouer sur les possibilités d'interprétation du POS à partir de considérations bioclimatiques mais attaquer le POS n'a aucun sens juridique et pas de chance d'aboutir sauf à avoir beaucoup de temps ;
Le meilleur moment pour peser sur un POS ou un PLU, c'est lors de sa conception ou de sa modification ou révision.
Il serait très intéressant qu'un lobbing soit fait par ? auprès des communes pour les inciter à intégrer dans leurs documents d'urbanisme des considérations bioclimatiques.
Pages : 1
Magazine Maisons & Bois International : N°1 de la construction maison bois | Découvrez le Guide Pratique de la Maison Positive