en kiosque

#1 13/04/2010 17:24:36

m8mat
Membre
Messages : 73

Petit mur à inertie derrière poêle

Bonjour à tous,
La construction de notre MOB va débuter dans les jours qui viennent (95m² habitables, 65 en rdc et 30 à l'étage, poêle 6k, VMC DF, orientée plein sud, environ 35 kwep de conso pour la maison). En parcourant le forum j'ai lu des choses intéressantes sur les murs à inertie au centre d'une maison.
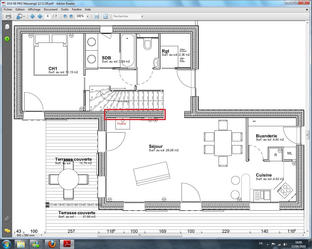
Je vous joins ici le plan de notre rez de chaussée :
http://m8mat.free.fr/Murinertie.jpg
La situation est la suivante :
Rien de spécial n'est prévu pour la partie encadrée de rouge. Elle est traitée en gros comme le reste de la maison par le charpentier.
Ceci dit ne serait il pas judicieux, au lieu de placo, de mettre autre chose à cet endroit là pour amener de l'inertie, le poêle se trouvant juste devant…
Le budget est très serré, mais si vous avez un avis ou une idée sur la question permettant d'améliorer le confort de la maison et exploitant peut-être mieux le poêle à cet endroit là cela nous intéresserait.
Merci d'avance
Cordialement
Mat

#2 13/04/2010 17:35:26

phil12
Membre
Lieu : UE
Messages : 3 984

Re : Petit mur à inertie derrière poêle

Bonjour ,

Si le sous bassement vous y autorise( faites vous meme,ce n'est pas mortel a faire )un mur en BTC.

Ce serait le Top!.



Ps :

Un lien sympa sur la Btc.
http://briquedeterre.over-blog.com/

#3 13/04/2010 17:52:27

m8mat
Membre
Messages : 73

Re : Petit mur à inertie derrière poêle

Bonjour phil,
Merci pour cette première réponse imagée. J'ai suivi le lien, très intéressant.
Donc à priori selon toi ça aurait un intérêt, c'est déjà bon à savoir.
Après je vais voir avec l'archi mais je pense que ça doit passer par rapport au sous bassement.
Je vais déjà aussi voir si je peux en avoir dans ma région (Limousin, proximité de Limoges). Le tarif n'est pas prohibitif et si ça apporte un plus autant le faire…
Merci encore
Mat

Magazine Maisons & Bois International : N°1 de la construction maison bois | Découvrez le Guide Pratique de la Maison Positive