Bonsoir,
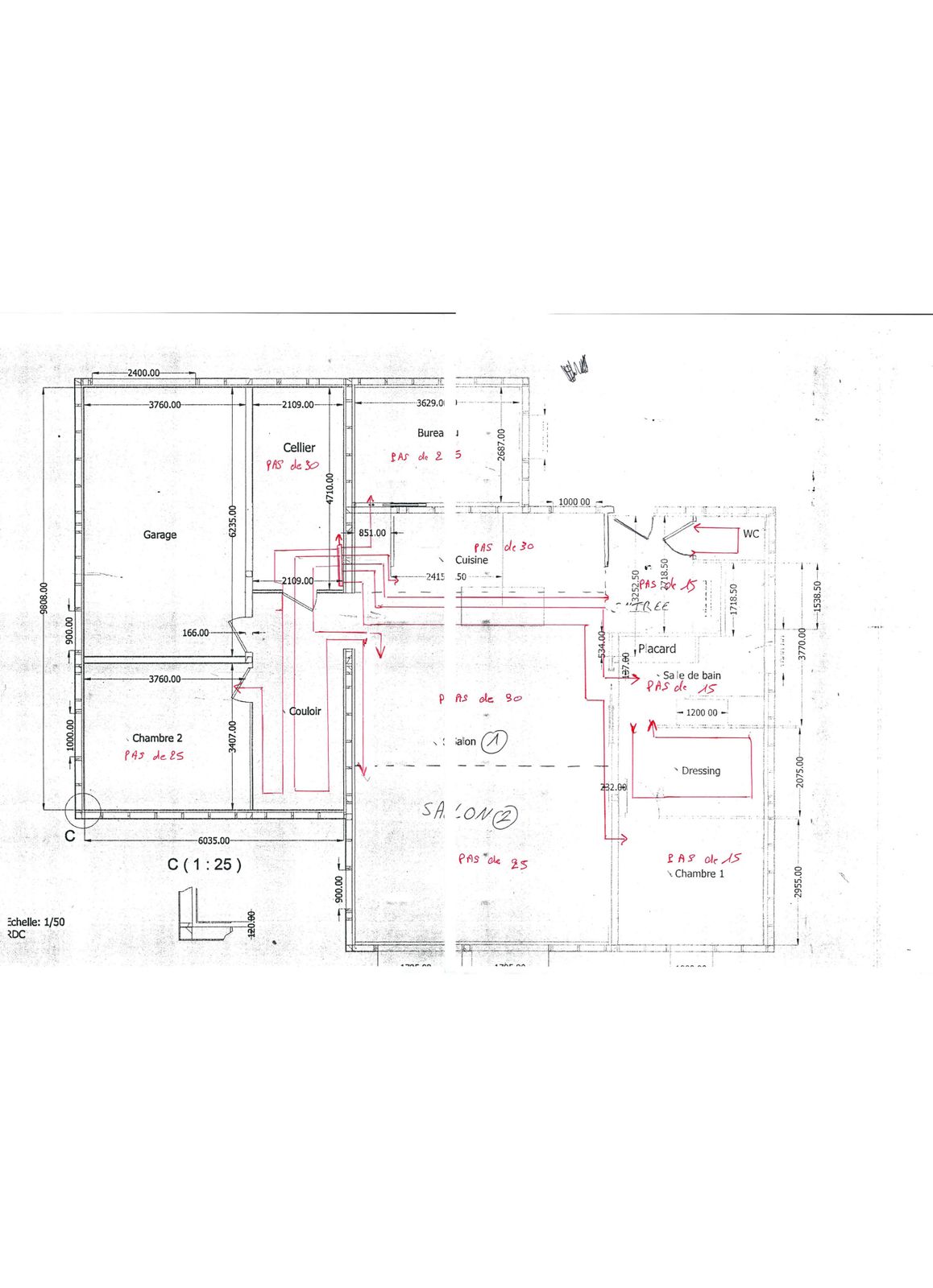
J'ai acheté mon matériel de plancher chauffant chez Aubade, et voici ce qu'il me donne comme document pour faire mon plancher …
Je n'y connais rien …
La nourrice de départ vu que j'ai 9 circuits doit être placée à quelle hauteur du sol fini (pour la courbure des tubes ?)
Je pensais mettre mon module PAC extérieur à côté du cellier qui est au nord (dans le coin à gauche), et mon module intérieur juste à cet endroit là. Du coup ma nourrice n'est pas un peu loin ?
Sinon dois je déplacer mon module intérieur, ou ma nourrice ?

De plus ils m'ont fourni un tableau avec les valeurs qui apparemment n'ont rien à voir avec mon plan …

Help que feriez vous car je coule la semaine prochaine ma dalle anhydrite.
Merci pour votre aide.
Sans vouloir vous vexer, quand on n'y connait rien, on demande d'abord et on saute après… là, je crois que vous avez un peu inversé l'ordre des facteurs…
La première chose, vous retournez chez aubade et vous faites préciser sur le plan la position de la nourrice (que je n'ai pas vue), ensuite, la zone de passage (et le pas) pour l'ensemble des départs/retours.
Pour la hauteur de nourrice, minimum 500mm, mais ça n'a pas grand chose à voir avec la courbure… par contre, avec le nombre de connexions à faire, si vous êtes à 1m, votre dos vous dira merci… et pour la balance des circuits, ce sera pas plus mal…
Ben hélas, on fait confiance au professionnel mais là franchement c'est pas top top …
La nourrice est dans le cellier à côté de la porte. pour le reste je ne sais pas.
Pour mes autres questions ? Une idée ?
Bonsoir,
J'ai acheté mon matériel de plancher chauffant chez Aubade, et voici ce qu'il me donne comme document pour faire mon plancher …
Je n'y connais rien …
La nourrice de départ vu que j'ai 9 circuits doit être placée à quelle hauteur du sol fini (pour la courbure des tubes ?)
minimum 500, jusqu'à 1500… c'est plus une question de confort pour le montage et le réglage que pour la courbure
En plus, vous avez 4 ou 5 circuits qui traverse la cloison… vous avez intérêt à faire une belle réservation
Je pensais mettre mon module PAC extérieur à côté du cellier qui est au nord (dans le coin à gauche), et mon module intérieur juste à cet endroit là. Du coup ma nourrice n'est pas un peu loin ?
Non
Sinon dois je déplacer mon module intérieur, ou ma nourrice ?
Non
réponse claire (j'aurais aimé un peu d'explications
)
réponse claire (j'aurais aimé un peu d'explications
)
Des explications sur quoi ?
Vous voulez pas que je vienne vous le poser, aussi ? ![]()
possible ? ![]()
Non sérieusement, la nourrice si je la mets au nord du cellier c'est pas mieux ? parce que traverser une cloison (mur porteur, même si c'est en bois …)
possible ?
Non sérieusement, la nourrice si je la mets au nord du cellier c'est pas mieux ? parce que traverser une cloison (mur porteur, même si c'est en bois …)
C'est une possibilité, mais votre cellier va être un véritable four ;
Dans ce cas, il faut supprimer la boucle 'cellier' ; ensuite, il faut quand même passer les boucles 'bureau' et 'cuisine' à travers la cloison. il vous restera 2x6 tubes à passer dans la porte de 70 ; ça fait des entr'axe de 5cm…
Vous avez intérêt à revenir chez Aubade faire valider la solution ; ça risque de changer le calepinage dans les bobines. et profitez en pour faire inscrire l'intitulé correct des pièces sur le tableau
Oui c'est clair, merci pour vos lumières.
Oui c'est clair, merci pour vos lumières.
Pas de soucis… et si, à la fin, il vous reste une "6 trous", je dirai pas non ![]()
Magazine Maisons & Bois International : N°1 de la construction maison bois | Découvrez le Guide Pratique de la Maison Positive