Pages : 1
Bonjour à tous,
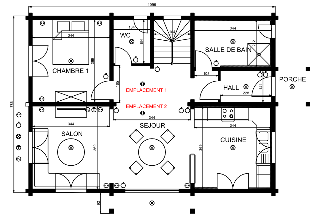
J'ai une petite question existentielle concernant l'emplacement du poêle à bois pour ma future maison en madrier.
J'hésite en effet entre deux positionnements.
Le premier en position plus retirée pour gagner en espace à vivre au niveau du séjour et de la mezzanine.
Le second en zone centrale, probablement celle qui est optimale pour la répartition de la chaleur.
Les deux positionnements ont leurs avantages et leurs inconvénients.
Premier emplacement :
- gain de place
- position proche de l'escalier (la chaleur risque-t-elle de partir essentiellement à l'étage au détriment du RDC)
Deuxième emplacement :
- position idéale centrale
- poele visible du salon
- perte de place dans le séjour en RDC et à l'étage sur la mezzanine
Parmi les possesseurs de poêles ou professionnels qui passeraient par ici, quel serait selon vous le meilleur emplacement ?
Voir les plans et les prévisualisations 3D pour vous donner une idée.





Merci par avance pour vos retours et bonne journée !
Julian
Pour moi, le plus loin possible de la trémie d'escalier pour éviter que la chaleur monte immédiatement.
C'est ce que j'ai fait avec une position centrale a l'entrée du séjour (photo sur blog)
Pages : 1
Magazine Maisons & Bois International : N°1 de la construction maison bois | Découvrez le Guide Pratique de la Maison Positive