Pages : 1
Pour faire suite a mon poste
https://maisons-et-bois.com/discussi … p?id=21235
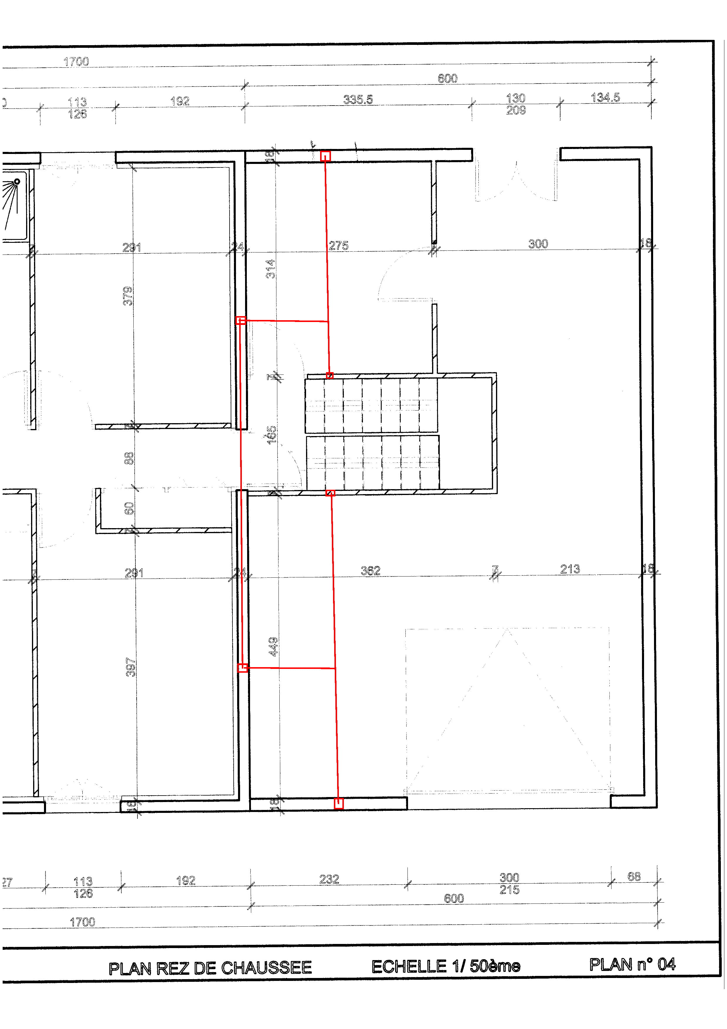
je reviens donc avec mon histoire de balcon
ne pourrais-je pas mettre au rdc des poteaux en béton (carrés rouges sur le plan) qui seront chainés (traits rouges) pour réaliser aux 2 angles de l'étage les balcon en béton et ensuite construire l'ossature ce qui éviterait les soucis étanchéité

au r+1 ça donnerait ceci, la lisse basse suivrait le chainage en beton

Avant de chercher telle ou telle solution de support, il vous faut travailler la coupe sur le détail plancher intérieur/mur/plancher extérieur/étanchéité.
Je suppose que si vous faites une terrasse accessible, il y a un accès par une porte. Le détail du seuil est aussi à intégrer au reste.
Quand vous maîtriserez ce point, vous comprendrez mieux les contraintes qui vont peser sur le support, qu'il soit en bois, en béton ou en acier.
Avant de chercher telle ou telle solution de support, il vous faut travailler la coupe sur le détail plancher intérieur/mur/plancher extérieur/étanchéité
j'ai pensé a quelque chose comme cela

le plancher du r+1 plus haut d'une hauteur h à déterminer et la terrasse faite en un seul bloc avec un le bord coté maison de la hauteur h précédente
Vous êtes sur la bonne voie.
Y'a plus ka… peaufiner les détails
Pages : 1
Magazine Maisons & Bois International : N°1 de la construction maison bois | Découvrez le Guide Pratique de la Maison Positive