Bonjour,
Je m'appelle Marcel, j'ai en projet une maison bois de 150 m² environ.
A étage, ou pas.
Ce plan serait l'idéal pour moi.

Je suis ouvert à tout conseil (Ossature bois ? Madriers ?…), bien que je favorise le côté look montagne.
Je ne vois aucun inconvénient à ce que les madrier "ressortent" des murs.
Je recherche également un professionnel susceptible de proposer cette construction clé en mains.
Ils sont très nombreux, et je me doute bien que parmi eux il y a des opportunistes.
Merci pour vos interventions.
bonjour et bienvenue sur le forum
votre plan idéal est il étudié par rapport à votre terrain ?
je trouve dommage les wc sans fenêtre.
pour faire réaliser des chiffrages, réalisez des plans plus précis avec les vues de façades et les vues en coupe avec surfaces toitures et murs, ainsi ce sera plus clair pour les pros de chiffrer votre projet
et bien entendu des plans adaptés à votre terrain et son orientation .
bonne construction
bonjour et bienvenue sur le forum
votre plan idéal est il étudié par rapport à votre terrain ?
je trouve dommage les wc sans fenêtre.
pour faire réaliser des chiffrages, réalisez des plans plus précis avec les vues de façades et les vues en coupe avec surfaces toitures et murs, ainsi ce sera plus clair pour les pros de chiffrer votre projet
et bien entendu des plans adaptés à votre terrain et son orientation .
bonne construction
Merci pour ces conseils.
Effectivement, je n'avais pas pensé à la fenêtre du WC, mais j'ai trouvé où le placer pour arranger ça
.
Je vais déplacer la porte du cellier/buanderie, et je gagne 2 m² dans la SDB !
Je vais donc m'attaquer au vues en coupe et toitures …mais c'est une autre paire de manches
…
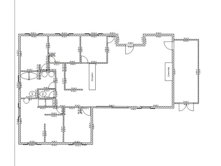
Voici la dernière évolution :

Voici la dernière évolution :
Un conseil : élargissez votre couloir, là il fait à peine la largeur d'une porte, c'est trop peu. Augmentez, quitte à perdre un peu de surface utile, ça aérera.
Dans notre projet je m'étais axé 1,2m minimum, je ne le regrette pas
Personnellement, je trouve que des toilettes qui donnent sur la pièce principale ça manque de discrétion…
C'est juste un avis…
Personnellement, je trouve que des toilettes qui donnent sur la pièce principale ça manque de discrétion…
C'est juste un avis…
Je partage cet avis.
piemdp a écrit :Personnellement, je trouve que des toilettes qui donnent sur la pièce principale ça manque de discrétion…
C'est juste un avis…Je partage cet avis.
Effectivement …
Auriez-vous une solution à me proposer, il est vrai que j'avais déplacé le WC à cet endroit pour pouvoir mettre une fenêtre.
Entrer dans ce WC par le sas d'entrée ?
francky74 a écrit :piemdp a écrit :Personnellement, je trouve que des toilettes qui donnent sur la pièce principale ça manque de discrétion…
C'est juste un avis…Je partage cet avis.
Effectivement …
Auriez-vous une solution à me proposer, il est vrai que j'avais déplacé le WC à cet endroit pour pouvoir mettre une fenêtre.
Entrer dans ce WC par le sas d'entrée ?
Vous pourriez l'intégrer au SAS d'entrée.
Ou encore décaler votre chambre et votre cellier vers le SAS pour Accéder au WC depuis le couloir…pratique car accessible depuis les chambres facilement.
Bonjour,
Un lavabo qui donne directement dans la chambre parentale n'est pas une bonne idée, idem la baignoire ouverte sur cette chambre; Impossible de sa laver si le conjoint dort encore.
Ensuite, je déplacerai la porte de la chambre (celle à côté de la ch parents) vers la gauche de façon à fermer le couloir, ce qui limiterai les bruits venant du salon et de la cuisine.
Bonjour,
Un lavabo qui donne directement dans la chambre parentale n'est pas une bonne idée, idem la baignoire ouverte sur cette chambre; Impossible de sa laver si le conjoint dort encore.
Ensuite, je déplacerai la porte de la chambre (celle à côté de la ch parents) vers la gauche de façon à fermer le couloir, ce qui limiterai les bruits venant du salon et de la cuisine.
Et puis, 2 baignoires sans douche dans une maison …
Frédé46 a écrit :Bonjour,
Un lavabo qui donne directement dans la chambre parentale n'est pas une bonne idée, idem la baignoire ouverte sur cette chambre; Impossible de sa laver si le conjoint dort encore.
Ensuite, je déplacerai la porte de la chambre (celle à côté de la ch parents) vers la gauche de façon à fermer le couloir, ce qui limiterai les bruits venant du salon et de la cuisine.Et puis, 2 baignoires sans douche dans une maison …
Le choix du lavabo et de la douche dans la chambre est délibéré
.
J'ai rajouté une cloison pour séparer la pièce de vie du coin nuit.
Dans la chambre, il s'agit bien d'une douche, c'est juste que nous souhaiterions l'avoir grande, et que j'ai agrandi (et donc déformé) le picto douche.
Voici ce que donne la V4
:

Après tout, c'est vous qui y dormirez pas moi !
Une dernière remarque concernant le toilette, absence de lave main et comment faites vous pour fermer la porte, vous vous collez le long du mur ou vous grimpez sur les toilettes ?
Nous avons des toilettes borgnes.
Avec une vmc, cela ne pose pas de pb.
Après tout, c'est vous qui y dormirez pas moi !
Une dernière remarque concernant le toilette, absence de lave main et comment faites vous pour fermer la porte, vous vous collez le long du mur ou vous grimpez sur les toilettes ?
Vous vouliez sans doute exprimer que le WC était trop petit …
Il est agrandi, et un lave-mains a été intégré.

Magazine Maisons & Bois International : N°1 de la construction maison bois | Découvrez le Guide Pratique de la Maison Positive