Bonjour,
je viens de m'inscrire sur ce forum que je trouve très instructif car je viens d'acheter un terrain plat à Tours d'une surface de 229m2 (cos 0.6) L=17 l=13.
J'ai le projet de construire une maison en bois de plein pied et en L pour raison de vis-à-vis.
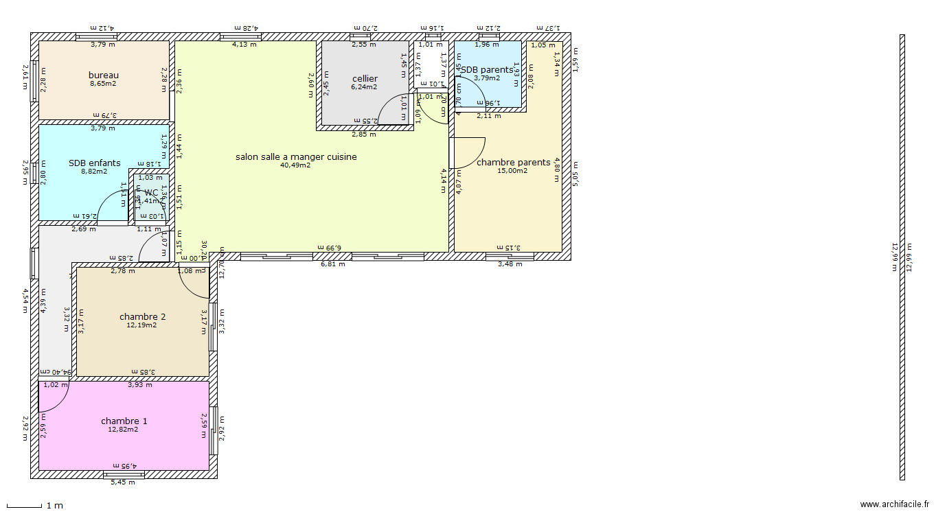
J'ai trouvé un plan d'une maison environ 120m2 que je trouve intéressant comme base de réflexion, j'aurais besoin de vos conseils pour l'améliorer et également optimiser le coût par rapport à des schémas simples.

Ce que j'aime dans ce plan:
- chambre des parents éloignée de l'espace nuit des enfants avec suite parentale
- espace nuit des enfants bien séparée de l'espace jour (je bougerais la porte de la chambre 2 dans le couloir)
- les chambres + espace vie donnent sur terrasse
- peu d'espace perdue hormis le couloir de l'espace nuit enfants que je trouve nécessaire, non?
Mes questions:
- où placer la porte d'entrée?
- je trouve la sdb parentale trop petite, comment l'agrandir (grande douche à l'italienne + baignoire)?
- 2ème WC pour parents? WC accessible facilement pour les invités? Comment optimiser l'accès WC?
- je souhaite dans le salon allongé dans le canapé pouvoir profiter du ciel, d'où l'idée d'une verrière ou d'un grand velux sur le toit (plat?), est-ce possible?
- Enfin au niveau isolation, j'ai vu un constructeur qui fabrique des panneaux avec isolants intégrés (fibre de bois, ouate de cellulose). Que doit-on privilégier en terme de meilleur rapport Q/P?
- critiques/améliorations diverses sur ce plan, n'hésitez pas
Merci d'avance pour vos conseils.
Fabien
Bonjour
Pourriez vous avant tout, dire ou est le Nord et le sud, car la position des pièces découlera de cette orientation
Cordialement
Paul BOUYER
constructeur de maisons bois à TOURS
www.maison-lignea.fr
06 60 95 11 67
vu la taille du terrain ce serait plus simple si vous mettez en ligne son plan avec la proximité des voisins, la façade sur rue, et surtout les contraintes d'urbanisme car s'il fait 13m de largeur et vous devez vous décaler de 4m de part en part ça risque de limiter le choix architectural…
Merci pour vos réponses.
Voici les compléments d'information:
Le PLU m'autorise de construire en limite de propriété. J'avoue que les dimensions peuvent être revues, ce qui m'importe dans le plan ce sont la disposition des pièces et les proportions.
L'orientation du terrain est Sud côté séjour.
-------------------------------!
!''''''''''''''''''''''''''''''''''''''''''''''''''''''''''''''''''''' !
! -----------------------------!
!''''''''''''''' !
! '''''''''''''''!
--------
___î
__Sud
Concernant les WC, j'ai remarqué qu'i il est surement trop petit mais qu'en est-il de sa disposition? Le verriez vous ailleurs? Quid d'un second WC?
Pour la chambre 2, la porte doit être dans le couloir et non dans le séjour. Je vais corriger.
Que trouvez vous intéressant dans ce plan et les aberrations à corriger?
L'entrée vous la mettriez où? Je pensais dans l'angle à côté de la baie vitrée de la pièce de vie.
Bonjour
Si vous construisez en limite de propriété sachez que vous ne pouvez pas faire d'ouvertures sur ce mur.
cela peut donc largement influer sur la position actuelle des pièces
Paul BOUYER
www.maison-lignea.fr
Oui, la maison sur le plan fait pas loin de 16m de largeur… bref c'est pour cela que je conseillais de présenter le terrain et les contraintes avant le plan de la maison car à priori tel que présenté elle ne rentrera pas dans le terrain......
Merci encore pour vos contributions.
Pour faire avancer la discussion, voici le plan du terrain qui est constitué de 2 lots. Je possède le lot A (en second rideau). Le lot B a été acheté par un particulier qui rénove une longère avec 1 étage déjà présente. Il n'y a pas de barrière séparatrice entre les 2 lots, en revanche les 3 autres côtés de mon lot sont clôturés et arborés.
Mon souci est d'éviter le vis-à-vis avec la longère d'où l'idée d'un plan en L et de plein pied.
Le plein pied est un choix pour une question de coût mais reste ouvert à d'autres solutions par rapport aux contraintes du terrain.
Quelques remarques:
- Le PLU m'impose une place de parking, que je prévois dans le prolongement de l'entrée de mon lot.
- le retour de l'espace nuit enfants fera de l'ombre mais il n'y a pas d'étage et je pense pas plus d'ombre que la longère qui possède un étage
- Concernant les dimensions, je sais qu'elles sont trop justes, je compte faire l'impasse du bureau et réduire la sdb enfants.
- La chambre des parents accolés au séjour est un souci?
- Où placer la porte d'entrée?
- Si je peux pas faire d'ouverture sur la façade nord (la plus longue), quelle alternative ais-je?
bonjour,
Je trouve le plan fourre-tout et probablement peu agréable/partique à vivre. A mon sens dans 120m² il faut hiérarchiser et faire des choix. Par exemple un sas d'entrée est indispensable alors qu'une 2ème SdB beaucoup moins. De même un bureau, sauf raison professionnelle, est rarement utilisé comme tel en pratique car les occupants lui préfère naturellement la pièce à vivre. Par ailleurs l'espace repos est divisé alors que son regroupement me semble plus pertinent. Le séjour quant à lui fait office de pièce couloir.
Voilà quelques remarques en passant.
Bonne réflexion
CL
Bonjour Arthémus,
merci pour tes remarques intéressantes.
Je répondrais que la suite parentale est pour moi indispensable dans mon projet et le fait d'éloigner l'espace parents des enfants est un gros plus.
Pourquoi le sas d'entrée est indispensable pour toi? Enfin je ne vois pas en quoi le séjour fait office de couloir? Je vois bien la cuisine façade nord à gauche du scellier.
Sinon +1 pour le bureau que je supprimerai.
Sinon pourquoi un WC dans la sdb des enfants et un autre à côté du scellier en réduisant celui-ci.
Est ce qu'un plein pied est vraiment moins cher ?
Car le terrassement c'est assez honereux, et puis ensuite, niveau confort, chauffage, ne vaut il mieux pas un r+1 bien conçu ?
Avec pièces à vivre en bas, et coin nuit en haut ?
De plus on récupère de la surface jardin, ce qui n'est pas négligeable je trouve…
Effectivement le R+1 peut être envisagé.
Sinon j'ai remodelé mon plan. (17mx9.50m). Qu'en pensez vous?
ps: je n'ai pas besoin de beaucoup de terrain, juste une belle terrasse et un coin pour mettre la voiture
Bon finalement le R+1 s'avère obligatoire car pas de fenêtres en limite de propriété. Donc l'idée serait de basculer le coin nuit enfants à l'étage
tu peux prévoir dans ton étude un éventuel futur garage (dans la continuité de ton chemin d'accès par exemple). Ca sera un plus énorme si tu en as besoin un jour et surtout en cas de revente. A voir qu'au dessus du garage ça peut être aménagé en pièce aussi.
Bonsoir,
Un plan en R+1 qui peut coller puisqu'il n'y a aucune fenêtre au nord (15m x 6m environ):
Au 1er étage il est possible de faire une chambre à la place du vide sur l'espace vie.
tu vas avoir une obligation de décaler de la limite de ton terrain les murs, vérifie sur ton plu de combien elle est, mais souvent c'est 4m.
ton terrain faisant 17m tu ne pourras pas rentrer une maison de 15m, sauf si tu ne mets pas d'ouvertures ou là tu pourras coller en limite…
Magazine Maisons & Bois International : N°1 de la construction maison bois | Découvrez le Guide Pratique de la Maison Positive