Pages : 1
Bonjour Ă tous,
Après plus de 5 ans dans notre maison (présentée sur ce site, entre autre, ici : https://maisons-et-bois.com/discussi … 42#p127442 ), améliorée grâce aux conseils et remarques de différents intervenants ici-même, un premier enfant, et bientôt un deuxième à venir, il est temps de songer à un futur (plus ou moins proche) agrandissement. Il fut question un temps de vendre et de faire re-construire (échanges avec Phil d'ailleurs, merci à lui), mais ce sera vraisemblablement un agrandissement.
Je poste dans la partie auto-construction car l'apprentissage de la construction de la maison, au quotidien, avec les équipes de charpentiers entre-autre, et depuis les différents travaux mis en oeuvre (terrasses, carports, abris de jardin), m'ont permis de prendre un peu d'assurance et d'avoir envie de faire un maximum de choses. Bien sûr beaucoup seront certainement inaccessible, mais tout ce que je peux je le ferai. On a plus de temps que d'argent, donc il faut aussi mettre la main à la patte : et ça nous intéresse !
Notre maison à la base est en ossature bois sapin du nord, 45x145, entre-axe 0.6m . (si j'écris des bêtises sur la nomenclature du vocabulaire n'hésitez pas…) .
Isolation ouate de cellulose insufflée + isolation par l'extérieur 60mm fibre de bois .
Bardage en Mélèze brossé thermo-huilé 28mm d'épaisseur
Je vous mets quelques photos et images pour explications et repères lors de la construction originale....





Le projet est assez mûr au niveau de ce qu'on voudrait (2 pièces supplémentaires à l'étage), mais au niveau de la conception je vais avoir besoin de vous. Je vais d'abord essayer de bien comprendre les choses à vos côtés, et je ne rencontrerai notre architecte qu'à la fin, pour "avoir des billes" pour échanger avec lui .
Voici le projet :
- rajouter une extension sur pilotis dans la partie nord est
- environ 40m² (nous passerions de 96m² habitables , pour 110m² de SHON, à environ 130m² habitables, pour 150m² de SHON je pense)
- un petit couloir desservant deux chambres
- sous l'extension possibilité simplement de garer deux voitures


(désolé pour les puristes, mon dessin est vraiment loupé, ne parlons pas des perspectives.... c'est juste pour donner une idée…)
Je peux faire les travaux en plusieurs étapes. Peut-être d'abord le plancher sur pilotis, puis l'ossature avec hors d'eau , hors d'air, et enfin les finitions intérieures.
La toiture sera de la même pente et dans le prolongement de celle déjà installée (je pense que c'est le plus simple ?), soit en bac acier donc.
La hauteur sous plafond sera environ la mĂŞme au plus haut, soit 2.4m, 1m50 au plus bas tout au bout.
On irait jusqu'en limite de propriété (on a bien le droit ?), alors que tout le reste de la maison allait aux 3m .
Je suis ouvert à toutes les remarques et précisions…
Bien sûr il y a la question du coût… mais je suppose que ce sera très variable selon mon investissement dans le projet… Si on arrivait autour de 1000 euros max hors d'eau / hors d'air ce serait parfait....
Pour le plancher je serais plutôt partant pour un plancher bois, mais est-ce une bonne idée dans la configuration proposée ? Est-ce compliqué ? sur pilotis bois vissés sur plots bétons ?
Merci d'avance pour vos contributions.
Bonjour,
Pour la construction en limite de propriété cela doit être possible, mais mieux vaut vous renseigner auprès des services concernés avant de faire dessiner vos plans .
Pour le plancher, faut dimensionner et justifier le contreventement.
Bonsoir,
Merci déjà pour ces premiers commentaires.
Je passerai à la mairie dès que possible. Et je mettrai l'info ici.
Que signifie "justifier le contreventement" ?
Malgré la configuration en angle, je suppose qu'il faut faire reposer le plancher sur des pilotis aux 4 coins + selon les besoins (en tout 9 ? 16 ?) de façon à ce qu'il soit presque "autonome" accolé à la maison ?
Une configuration sur 9 pilotis nous arrangerait pour garer les voiture dessous.
avec des "petites " dimensions comme ca, et sur un angle de maison déjà existante, le contreventement va passer c'est certain....
mais une étude par un BE, vous soulagera de quelques milliers d'euros....
C'est un terme que l'on emploi pour dire que les sections, les descentes de charge, le contreventement, etc, ont été calculés et peuvent être justifiés.
erreur
Merci pour ces premières précisions.
En revoyant les plans, nous avons pensé à une chose, mais j'ai besoin de vos éclairages :
- au départ nous pensions qu'il fallait utiliser l'encadrement de la porte fenêtre comme accès à l'extension. Mais ne serait il pas possible de modifier l'ossature pour "créer une ouverture au plus près du mur actuel est(-nord) pour donner un accès couloir par le nord de l'extension (voir plan ci dessous) ?
- ainsi on aurait ce type de plan :

- déjà la surface est un peu moins grande (environ 35m², pour disons 27/28m² habitables), et peut-être que la conception est plus simple ? et les difficultés moins importantes pour la construction ?
Merci d'avance pour vos remarques sur la pertinence de ce type d'extension, qui pour le coup nous suffirait en surface habitable (gain d'une chambre par rapport à aujourd'hui et de la place) et permettrait aussi d'avoir les ouvertures exposées au sud; couts moins importants (au m² ajouté) ? ; on reste aux 3m, pas de soucis.
Bonsoir,
Brutus avait raison de demander des précisions, on ne peut pas aller en limite de propriété, il faut rester dans l'alignement de la maison aux 3 mètres.
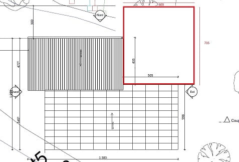
Donc ce serait plutĂ´t la version ci-dessus.
Bon faut donc oublier la version 6x7.35.
En même temps, cela sera moins de contrainte pour vous en terme d'entretien pour la façade en limite de propriété.
Pour la version 4.35*8, si la surface habitable vous convient c'est très bien et cela vous soulagera un peu en taxe foncière.
Ensuite pour le changement au niveau de l'ouverture, cela va générer un cout car il faudra créer l'ouverture dans le bâtiment existant.
Anticiper si possible les contraintes au niveau des gaines électriques qui seraient à cet endroit.
Merci beaucoup pour votre réponse !
Un surcout effectivement mais :
- n'est il pas possible d'utiliser l'espace entre deux montants (ça risque faire juste) pour réaliser l'accès ?
- ou encore, si c'est possible, de supprimer le montant le plus près du coin nord-est actuel (l'espace est faible avec le bord) ?
Ce sera à voir avec l'architecte de toute façon.
Nous envisagions de récupérer la porte fenêtre inutile dès lors pour la placer dans la chambre la plus extérieure (menuiserie bois-alu internorm passiv 4 16 4 16 4 argon).
C'est possible ?
Enfin, pour avancer sur la réflexion des "pilotis", comment faut il envisager les choses dans notre configuration ? fondation bétons + poteaux bois ? fondations bétons + poteaux béton ? (et même au droit des murs actuels ?)
Faudra-t-il solidariser les fondations des plots bétons les unes aux autres ?
Merci d'avance
PS : pas de cables électriques à cet endroit là (photo avant pose de placo)

Bonjour,
Rencontre avec notre architecte hier. Après 2h d'échanges nous allons partir à priori sur la version avec couloir au nord et les deux chambres donnant au sud.

La surface sera d'environ 30m² (4.3m x 7m) .
Je vous en dis plus dès que possible. En attendant passez tous de bonnes fêtes !
Pages : 1
Magazine Maisons & Bois International : N°1 de la construction maison bois | Découvrez le Guide Pratique de la Maison Positive